Profesionální bednění pro každý stavební projekt

Naše půjčovna nabízí široký výběr bednění pro různé typy staveb – od lehkých hliníkových systémů pro ruční manipulaci až po robustní varianty pro strojní použití. Díky více než 4 500 m² bednění, 1 600 stojkám a 2 200 nosníkům máme dostatek kapacit i pro rozsáhlé projekty.

K zapůjčenému bednění navíc zdarma poskytujeme návrh sestavení, a to v barevné verzi až do formátu A0. Tím šetříme váš čas i náklady na projektovou přípravu a zároveň vám usnadníme rychlou realizaci na stavbě.

Monti Alu

Lehké univerzální stěnové bednění určené výhradně pro ruční manipulaci

Základní prvkem systému Monti ALU jsou panely tvořené rámem z vysokopevnostních hliníkových slitin osazeným vodovzdornou překližkou. Nízká hmotnost (25 kg) největšího panelu o rozměrech 1,5 x 0,75 m umožňuje ruční manipulaci bez nutnosti využít těžké techniky. S bedněním Monti ALU lze bednit konstrukce až do výšky 4,5 m.

Velká variabilita systému Monti ALU, daná množstvím příslušenství a rozměrů panelů, umožňuje bednit pravoúhlé i polygonální tváry od drobných po velké monolitické skelety.

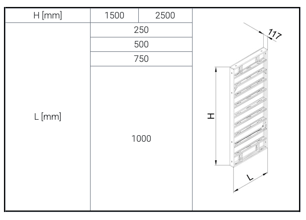
Domino

Univerzální stěnové bednění určené ke strojní manipulaci

Základní prvkem systému DOMINO jsou panely tvořené ocelovým rámem osazeným vodovzdornou překližkou. Hmotnost největšího panelu o rozměrech 2,5 x 1,0 m je 88 kg.

Maximální výška bednění pro betonáž je až 5 m.

Ideální systém pro pohledové konstrukce.

Bednění DUO

Univerzální lehké stěnové bednění pro ruční i strojní manipulaci

Základním prvkem systému PERI DUO jsou panely z odolného technopolymeru, který spojuje nízkou hmotnost, pevnost a dlouhou životnost. Největší panel váží pouze 24,9 kg, což umožňuje pohodlnou montáž ručně, ale v případě potřeby je možné využít i strojní manipulaci. S bedněním lze provádět betonáže stěn až do výšky 5,4 m.

Systém PERI DUO umožňuje také bednění sloupů v rozměrech od 15 do 55 cm po 5 cm modulech. Díky modulárnímu řešení a široké nabídce panelů i příslušenství lze snadno bednit téměř jakýkoliv tvar.

Materiál panelů je nenasákavý a snadno omyvatelný, takže zákazník ocení jednoduchou údržbu a snadné čištění přímo na stavbě. Systém má méně konstrukčních dílů než klasické bednění, a proto je jeho obsluha jednoduchá i bez vysokých nároků na odborné znalosti. Montáž se obejde s minimem nářadí a probíhá bezhlučně – není potřeba použití kladiva. Hlavní výhody PERI DUO:

Multiflex

Stropní bednění pro bednění vodorovných konstrukcí

Přesné přizpůsobení každé délce umožňuje překrývání nosníků. Jemným nastavením stojek lze dosáhnout požadované výšky a to od 1,45 m do 5 m.

Neváhejte a kontaktujte nás!

Václav Šváb

technik obchodu SB

Ing. Kryštof Dostál

technik obchodu SB

Vánoční otevírací doba

Upozorňujeme naše zákazníky, že od 17. 12. 2025 od 12:00 do 4. 1. 2026 včetně bude naše půjčovna uzavřena.
Děkujeme za pochopení a přejeme klidné svátky.